Kö Bogen II, Düsseldorf

Ensemble am Gustaf-Gründgens-Platz im Zentrum der Stadt

Mitarbeit ingenhoven architects, Düsseldorf

Kö Bogen II, Düsseldorf - Fassadenbegrünung

8 Kilometer Hainbuchenhecke, über 30.000 Pflanzen – Europas größte Grünfassade

Mitarbeit ingenhoven architects, Düsseldorf

Der Auftrag: Der Stadt so viel Grün wie möglich zurückgeben

“Durch ein umfassendes phytotechnologisches Konzept werden die Hecken zu einem integralen Bestandteil des Gebäudes. Sie verbessern das Mikroklima der Stadt – das Grün schirmt im Sommer die Sonnenstrahlen ab und reduziert den innerstädtischen Wärmeeffekt, bindet Kohlendioxid, speichert Feuchtigkeit, dämpft Lärm und fördert die Biodiversität. Der ökologische Nutzen der Hainbuchen entspricht dem von rund 80 ausgewachsenen Laubbäumen. Eine mögliche Antwort der Städte auf den Klimawandel.”

- ingenhoven architects

Grasbrook, Hamburg - Lageplan

Mitarbeit Herzog & de Meuron, Basel (1. Preis im zweistufigen Wettbewerb + anschließende Funktionsplanung)

Grasbrook, Hamburg - Visualisierung Wohninsel

Mitarbeit Herzog & de Meuron, Basel (1. Preis im zweistufigen Wettbewerb + anschließende Funktionsplanung)

Grasbrook, Hamburg - Visualisierung Elbuferpark

Mitarbeit Herzog & de Meuron, Basel (1. Preis im zweistufigen Wettbewerb + anschließende Funktionsplanung)

„Willkommen im Grasbrook! An einem zentralen Ort inmitten der Stadt entsteht ein neuer Stadtteil, der unser Bild von Hamburg nachhaltig prägen wird.“

Dr. Andreas Kleinau,

Vorsitzender der Geschäftsführung, HafenCity Hamburg GmbH 

“Elementum” München - Visualisierung Bayerstraße

Mitarbeit Herzog & de Meuron, Basel

“Baue auf und mit dem Gebauten”, das ist unsere Maxime.

Pierre de Meuron

“Elementum” München - Visualisierung Innenhof

Mitarbeit Herzog & de Meuron, Basel

“Elementum” München - Animation

Mitarbeit Herzog & de Meuron, Basel

“Elementum” München - Baufortschritt, Teilabbruch Bestand

Mitarbeit Herzog & de Meuron, Basel

“Elementum” München - Baufortschritt, Teilabbruch Bestand

Mitarbeit Herzog & de Meuron, Basel

Strukturmodell M 1:200

Elbtower, Hamburg - Strukturmodell M 1:200

Studentisches Projekt

Elbtower, Hamburg - Visualisierung Veddel

Studentisches Projekt

Elbtower, Hamburg - Grundriss Erdgeschoss

Studentisches Projekt

Elbtower, Hamburg - Visualisierung HafenCity

Studentisches Projekt

Neue Architekturfakultät der TU Dresden - Visualisierung Campuspark

Internationaler Studentischer Wettbewerb (3. Preis + 1. Preis BDA Award)

THE ROOF.
The roof moves in an elegant way over the building. The identity of each department is very clear. The functional composition works in both ways very well horizontal and vertical.
— Jury Urteil aus dem internationalen Preisgericht

Neue Architekturfakultät der TU Dresden - Überlagerung Grundrissebenen

Internationaler Studentischer Wettbewerb (3. Preis + 1. Preis BDA Award)

Raum für Architekten, und davon viel, lichtdurchflutet und klar organisiert entlang einer inneren Straße mit einer Menge Platz für not-wendige Improvisation und Interaktion. Das Gebäude ist strukturell gedacht; quasi eine Infrastruktur, die sich den ständig ändernden Bedürfnissen einer Schule für Architektur sogar kurzfristig anpassen kann. Alles befindet sich unter einem Dach, und doch wird eine Vielfalt an unterschiedlichsten Räumen und Proportionen angeboten. Gerade als Architekt kann man sich gut vorstellen, welch inspirierende und angenehme Arbeitsatmosphäre hier geschaffen würde.
— Auszug des Jury Urteils vom Bund Deutscher Architekten

Neue Architekturfakultät der TU Dresden - Visualisierung Atelier

Internationaler Studentischer Wettbewerb (3. Preis + 1. Preis BDA Award)

Neue Architekturfakultät der TU Dresden - Strukturmodell

Internationaler Studentischer Wettbewerb (3. Preis + 1. Preis BDA Award)

Vision für den Ernst-Reuter-Platz - Städtebauliches Modell M 1:500

Studentischer Wettbewerb

Vision für den Ernst-Reuter-Platz - Grundriss Ebene -2

Studentischer Wettbewerb (1.Preis + Heinze Architektenaward)

“Riesen Bücherkeller. Studenten schlagen eine Bibliothek in der abgesenkten Mitte des Ernst-Reuter-Platzes vor.”

Der Tagesspiegel 28. Juli , 2017

“Der Siegerentwurf (…) behält das Verkehrsrund bei, will es aber erweitern. Hier wird nicht arrogant mit dem Bestand umgegangen, sondern der Platz im Geist seiner Gestaltung aus den 50er-Jahren weitergedacht”

Berliner Morgenpost, 28. Juli , 2017

“Ohne Türme geht’s nicht.

Oben braust der Verkehr. Unten herrscht konzentrierte Stille in der Bibliothek, mittendurch fährt die U2 - der Siegerentwurf des Werkbund-Wettbewerbs”

Berliner Zeitung , 28. Juli , 2017

Vision für den Ernst-Reuter-Platz - Visualisierung TU Berlin

Studentischer Wettbewerb (1.Preis + Heinze Architektenaward)

Vision für den Ernst-Reuter-Platz - Visualisierung Lesesaal

Studentischer Wettbewerb (1.Preis + Heinze Architektenaward)

Tanzschule, Aachen - Modell M 1:50

Studentisches Projekt, Integrierte Projektarbeit

Tanzschule, Aachen - Werkplanung Grundriss M 1:50

Studentisches Projekt, Integrierte Projektarbeit

Tanzschule, Aachen - Werkplanung Fassadendetail M 1:5

Studentisches Projekt, Integrierte Projektarbeit

Tanzschule, Aachen - Werkplanung Fassadendetail M 1:5

Studentisches Projekt, Integrierte Projektarbeit

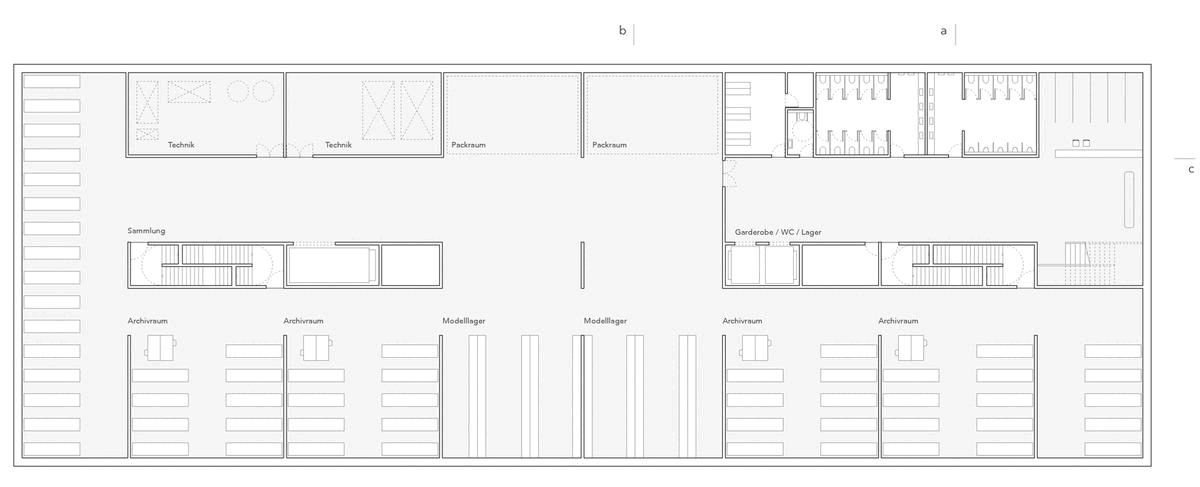
Architekturmuseum München - Strukturmodell

Studentisches Projekt

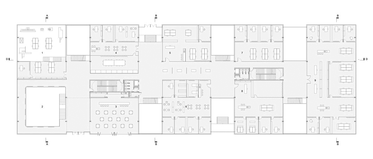
Architekturmuseum München - Überlagerung der Grundrissebenen

Studentisches Projekt

Architekturmuseum München - Visualisierung Glyptothekenpark

Studentisches Projekt

Architekturmuseum München - Visualisierung Ausstellung

Studentisches Projekt

LUMA Arles - “La Formation “

Mitarbeit Selldorf Architects, New York City

LUMA Arles - Masterplan

Mitarbeit Selldorf Architects, New York City

LUMA Arles - “La Formation “

Mitarbeit Selldorf Architects, New York City

LUMA Arles - “La Meqanique“

Mitarbeit Selldorf Architects, New York City

Mwabwindo School, Zambia

Mitarbeit Selldorf Architects, New York City

Mwabwindo School, Zambia

Mitarbeit Selldorf Architects, New York City

Mwabwindo School, Zambia

Mitarbeit Selldorf Architects, New York City

Mwabwindo School, Zambia

Mitarbeit Selldorf Architects, New York City